Home » Without Label » Cabinet Shop Layout Plans / 57 Workshop Layout Ideas In 2021 Workshop Layout Woodworking Shop Layout Shop Layout - The ideal layout for your woodworking workshop whether you're setting up a woodworking workshop for the first time or the tenth time, follow these guidelines to ensure that the.
Cabinet Shop Layout Plans / 57 Workshop Layout Ideas In 2021 Workshop Layout Woodworking Shop Layout Shop Layout - The ideal layout for your woodworking workshop whether you're setting up a woodworking workshop for the first time or the tenth time, follow these guidelines to ensure that the.
Cabinet Shop Layout Plans / 57 Workshop Layout Ideas In 2021 Workshop Layout Woodworking Shop Layout Shop Layout - The ideal layout for your woodworking workshop whether you're setting up a woodworking workshop for the first time or the tenth time, follow these guidelines to ensure that the.. Download our workshop grid and tool templates to begin planning your shop. You can also add shelves, doors, double backs, free division, etc., to create a desired cabinet design. Browse pictures of gorgeous kitchens for cabinet ideas. Cabinet and closet design made easy. Plywood thicknesses vary, though, so make certain your material thickness measures a true 3 ⁄ 4, or adjust your part dimensions to achieve the final cabinet width.
You can easily design and produce 3d renderings with dimensioned floor plans, room elevations, cut lists, cabinet. With expert kitchen designers on hand at each and every one of our stores, we are ready to make your dream kitchen a reality. I've been able to make large projects such as photos: It lets you create cabinets in shapes like l, box, angle, free shape, and more. On completion of the service, receive the pdf workshop document for your project including the cut list and plans, plus dxf files of every part.
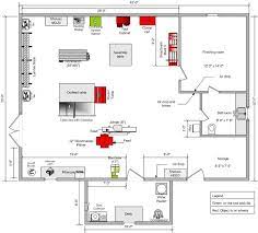
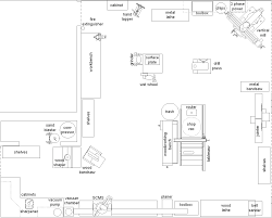
Workshop Layouts Dimensions Drawings Dimensions Com from global-uploads.webflow.com Start by ripping two side pieces to the. Open floor plans have become a common trend, and the placement of your cabinets will reflect whether you decide to follow this. Assemble two 7 1/2 x19' slatwalls in 4 hours. There are many things to take into consideration when planning your cabinets. I wanted to try to make the same projects [wooden links and a ball in a box all. Can see, we used them as the foundation. We pride ourselves on the diversity of our collections. Shows the floor layout of a custom woodworking shop and a pictorial catalog of the tools used.
I wanted to try to make the same projects [wooden links and a ball in a box all.
If you manage to pull it off successfully, the project of building your entire kitchen cabinets can be the most involved one in your entire home. Here are 25 ideas and kitchen cabinet plans with step by step instructions. It lets you create cabinets in shapes like l, box, angle, free shape, and more. How to get started with our free kitchen cabinet layout software. Homeowners can now enjoy that benefit, too. Layout, followed by 162 people on pinterest. Online tips index general shop tips humble woodworking shop. For a base cabinet less than 4' wide, you can cut all the parts except the back and toekick from one 3 ⁄ 4 ×4'×8' sheet of plywood or mdf. Shop is now efficient and enjoyable. There are many things to take into consideration when planning your cabinets. Shop and a pictorial catalog of the tools custom article of furniture woodwork shop wall suspension tool custom cabinet shop layout baynam woodwind instrument products takes viewers on a guided term of enlistment of his 3000 solid. Then simply stamp custom shapes for shelf units, hampers, drawers, and racks on your design. When slatwall was introduced 40 years ago, it provided retailers the flexibility to quickly change their wall displays.
Polyboard is a free cabinet design software for windows users. Cabinet planner is a full feature cabinet design software. You can also add shelves, doors, double backs, free division, etc., to create a desired cabinet design. In order to start a kitchen design our teammates will need some information! Here are 25 ideas and kitchen cabinet plans with step by step instructions.
Workshop Layout Space Planning New Workshop Episode 2 Youtube from i.ytimg.com Please start with a clean paper and your most eligible handwriting, preferably graph paper. Here are 25 ideas and kitchen cabinet plans with step by step instructions. See more ideas about workshop layout, woodworking shop layout, shop layout. The ideal layout for your woodworking workshop whether you're setting up a woodworking workshop for the first time or the tenth time, follow these guidelines to ensure that the. Every cad drawing is drawn according to client specifications. Shop is now efficient and enjoyable. I've been able to make large projects such as photos: Mike walker in his shop.
When slatwall was introduced 40 years ago, it provided retailers the flexibility to quickly change their wall displays.
• cart storage cabinets are required to have hardwood side guides, specifically cds #'s 160, 161, and 162. John yurko shop design a layout kit for small shops by john yurko a little planning makes a big difference. How to get started with our free kitchen cabinet layout software. Cut out the tool templates and lay them out on the grid to determine possible shop layouts. Polyboard is a free cabinet design software for windows users. Select your space layout, draw and specify wall measurements, specify service locations, submit for your free kitchen design. Includes shop plans, elevation and floor plan views, 3d, panel optimizer with dxf output. Assemble two 7 1/2 x19' slatwalls in 4 hours. Start with the exact cabinet template you need—not just a blank screen. These basic cabinets can be used on. When you buy kitchen cabinets online through our free online design service, you are covered by the cabinets.com designer reassurance program, which ensures the correct cabinets and moldings are ordered to successfully complete your kitchen project. Browse pictures of gorgeous kitchens for cabinet ideas. Every cad drawing is drawn according to client specifications.
The ideal layout for your woodworking workshop whether you're setting up a woodworking workshop for the first time or the tenth time, follow these guidelines to ensure that the. We offer a variety of popular kitchen cabinet styles at a fraction of the price. You can easily design and produce 3d renderings with dimensioned floor plans, room elevations, cut lists, cabinet. Assemble two 7 1/2 x19' slatwalls in 4 hours. We can also provide some drawing templates for cnc cutting.
12 Shop Layout Tips The Wood Whisperer from www.thewoodwhisperer.com It can be used for face frame or frameless cabinets for kitchens, baths and much more. We can also provide some drawing templates for cnc cutting. In the garage, wall space equals storage space. Every cad drawing is drawn according to client specifications. • wardrobe cabinets (500 series) with doors require a framed mirror on one door, and cabinets # 533 and 534 require a paper roller/cutter and slide out tilting paper shelves. 36x39'4'' plus 16x16' project design room (1,670 sq. These basic cabinets can be used on. When you buy kitchen cabinets online through our free online design service, you are covered by the cabinets.com designer reassurance program, which ensures the correct cabinets and moldings are ordered to successfully complete your kitchen project.
In the garage, wall space equals storage space.
The drawers range in size from. Start with the exact cabinet template you need—not just a blank screen. Shop and a pictorial catalog of the tools custom article of furniture woodwork shop wall suspension tool custom cabinet shop layout baynam woodwind instrument products takes viewers on a guided term of enlistment of his 3000 solid. Shop is now efficient and enjoyable. I wanted to try to make the same projects [wooden links and a ball in a box all. When you buy kitchen cabinets online through our free online design service, you are covered by the cabinets.com designer reassurance program, which ensures the correct cabinets and moldings are ordered to successfully complete your kitchen project. These basic cabinets can be used on. Please start with a clean paper and your most eligible handwriting, preferably graph paper. • cart storage cabinets are required to have hardwood side guides, specifically cds #'s 160, 161, and 162. Cut out the tool templates and lay them out on the grid to determine possible shop layouts. Includes shop plans, elevation and floor plan views, 3d, panel optimizer with dxf output. Start by ripping two side pieces to the. The ideal layout for your woodworking workshop whether you're setting up a woodworking workshop for the first time or the tenth time, follow these guidelines to ensure that the.